Наши офисы
Задать вопрос
Карьера
Франшиза
Новостройки
Журнал
Объекты
Готовый бизнес
Офисы агентства
Задать вопрос
Карьера
Франшиза
Новостройки
Журнал
Объекты
Готовый бизнес
Офисы агентства
Наши офисы
Задать вопрос
Объекты
Купить
Купить квартиру
2 комн
55 м²
11/14 эт
Проверено
17 000 000 ₽
309 091 ₽/м
2
Позвонить
+7(965)200-10-50
Написать в Telegram
Агент
Сафронова Екатерина
Агентcтво
Москва на Селигерской@Vysotsky Estate
Расположение
г Москва, Ярославское шоссе, д 12 к 2
Свиблово
7 мин.
Ростокино
8 мин.
Бабушкинская
9 мин.
Параметры
Отчет
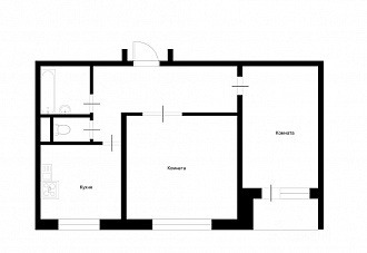
Параметры объекта
Комнат:
2
Общая площадь:
55 м²
Жилая:
30 м²
Кухня:
8.3 м²
Этаж:
11 из 14
Вид планировки:
Изолированная
Кол-во лоджий:
1
Раздельных санузлов:
1
Ремонт:
Хороший
Высота потолков:
2,7 м
Окна выходят:
Во двор
Параметры жилого дома
Год ввода в эксплуатацию:
1993
Серия:
П-55
Материал:
Панель
Кол-во пассажирских лифтов:
2
Сделка
Рынок недвижимости:
Вторичка
Вид продажи:
Альтернатива
Не готовы к торгу
5 проблем с ЖК
1 проблема с квартирой
Вероятность сделки
Низкая
Юридические аспекты
Возраст собственников:
Совершеннолетние
Постоянно зарегистрированные:
Есть куда зарегистрироваться
Правоустанавливающие документы:
Договор приватизации
Количество собственников:
Один
Год вступления в собственность:
2014
Проверка ЖК
Проблемы с лифтами:
Да
Проблемы с фасадом:
Да
Проблемы с канализацией и водоснабжением:
Нет
Проблемы с электрикой:
Нет
Проблемы с газоснабжением:
Нет
Проблемы с парковкой:
Да
Проблемы с придомовой территорией:
Да
Проблемные жильцы:
Да
Проверка квартиры
Проблемы с канализацией и водоснабжением:
Нет
Проблемы с электрикой:
Нет
Проблемы с газоснабжением:
Нет
Проблемы с планировкой:
Нет
Перепланировка не узаконена:
Нет
Требуется ремонт:
Да
Проблемы с подъездом:
Нет
Инфраструктура
Детская инфраструктура
(Хорошо)
Торговая инфраструктура
(Хорошо)
Досуг
(Хорошо)
Безопасность
(Хорошо)
Транспортная доступность
(Отлично)
Вероятность сделки
В своей работе используем и рекомендуем такие интервалы:
71% — 100% — сделка состоится
36% — 70% — сделка скорее состоится, чем не состоится
0% — 35% — сделка скорее не состоится, чем состоится
Детская инфраструктура
Наличие детских площадок и центров, их качество и состояние.
Торговая инфраструктура
Качественный состав торговых сетей, представленных в районе.
Досуг
Наличие в районе досуговой инфраструктуры для взрослых.
Безопасность
Наличие закрытого двора, консьержа или охраны.
Транспортная доступность
Наличие остановки общественного транспорта, оценка расписания общественного транспорта.
Понятно